RELIFE UNIQUE
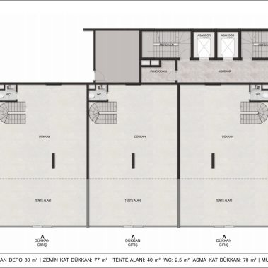
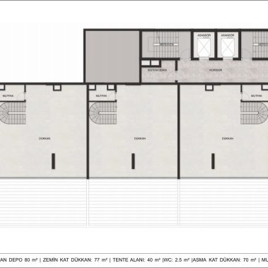
Our project, located in the Çağlayan neighborhood of Lara, Antalya, is built on a land area of 8,080 m² and consists of a total of 5 blocks, including 64 units of 3+1 apartments, 20 units of 2+1 offices, and 5 commercial shops. It will be delivered in April 2027 and includes indoor amenities such as a sauna, fitness center, steam room, and kids club, as well as outdoor facilities like a swimming pool, tennis court, and children’s playground.




























































































