YALI EVLERİ

Поэтажные планы

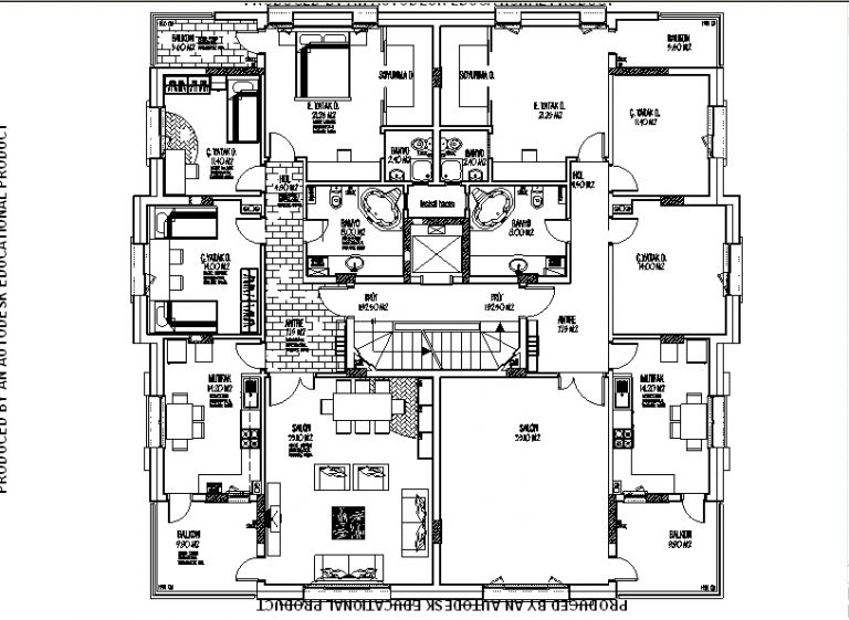
Внутренние помещения

  • Прихожая: входная металлическая дверь, гранитно-керамический пол, гипсокартонный потолок, точечное освещение, гардероб
  • Гостиная: ламинатные полы, декоративный подвесной потолок, потолочное точечное освещение, телевизионная, телефонная и электрическая разводка
  • Кухня: гранитно-керамический пол, подвесной потолок, точечное освещение, телевизионная, телефонная и электрическая разводка, кухонные шкафы, внутренние аксессуары для кухонных шкафов, двойная стальная раковина, вытяжка, встроенная электрическая плита, встроенная духовка
  • Комнаты: ламинатные полы, шпонированные двери, телевизионная, телефонная и электрическая разводка
  • Общая ванная комната: ламинатные полы, шпонированные двери, телевизионная, телефонная и электрическая разводка
  • Ванная комната главной спальни: полы и стены с покрытием из керамики 1-го класса, дверь из древесного массива, угловой душ и кабина, раковина со шкафом системы Hilton, зеркало, смесители Rokakale, банные аксессуары, встроенный бак унитаза, подвесная чаша унитаза, подвесной потолок, помещение для переодевания
  • Балконы: полы с покрытием из керамики 1-го класса, алюминиевое ограждение, водопроводный кран

Общественные помещения

  • Каркас выполнен из железобетонных конструкций в соответствии с требованиями по сейсмостойкости, возведение выполнено под соответствующим техническим и инженерным надзором
  • Соответствующий проекту архитектурный облик, фасад покрыт водоотталкивающей эластичной краской, декоративное алюминиевое ограждение
  • Соответствующий проекту плавательный бассейн с солярием
  • Ландшафтное благоустройство сада, озеленение, система полива, освещение и отвод грунтовых вод
  • Электрогенератор с мощностью, достаточной для освещения общих помещений
  • Внешнее ограждение участка в соответствии с архитектурным обликом здания, выполнено из стен и проволочной сетки
  • Охраняемый вход в комплекс с КПП
  • Крыша из кровельной плитки, уложенной поверх водо- и теплоизоляции
  • Видеодомофон с подключением к пунктам консьержа и охраны
  • Перила и подоконники из гранита или мрамора
  • Теплый пол и кондиционеры ВЕКО во всех комнатах и кухнях, электрический бак для нагрева воды
  • Окна с рамами ПВХ, стеклопакетами с термоконтролем 4 *16*4 или 4 *14*4 и пластиковыми жалюзи
  • Система электроснабжения сертифицирована ТИС, телевизионная система с возможностью подключения к кабельному и спутниковому вещанию, 3-х полосная распределительная телефонная линия